Регион: Ленинградская область, 2023 г
Площадь: 260 кв. м.
Статус: в процессе реализации
Бюджет на ремонт: не согласовывали
Задача
Перед нами стояла задача сделать перепланировку недостроенного дома, который достался хозяевам от родственников. Фундамент, стены, крыша и даже часть перекрытий были возведены, газ подведен к участку, колодец с водой выкопан. От изначального проекта остались только поэтажные планы расстановки мебели.
Дом хотели использовать для некруглогодичного отдыха всей семьёй из 6-ти человек с друзьями. Важно было разместить 5 спален, сделать 2 санузла, небольшой кабинет, зоны для совместного времяпрепровождения, отдельную кладовую и котельную.
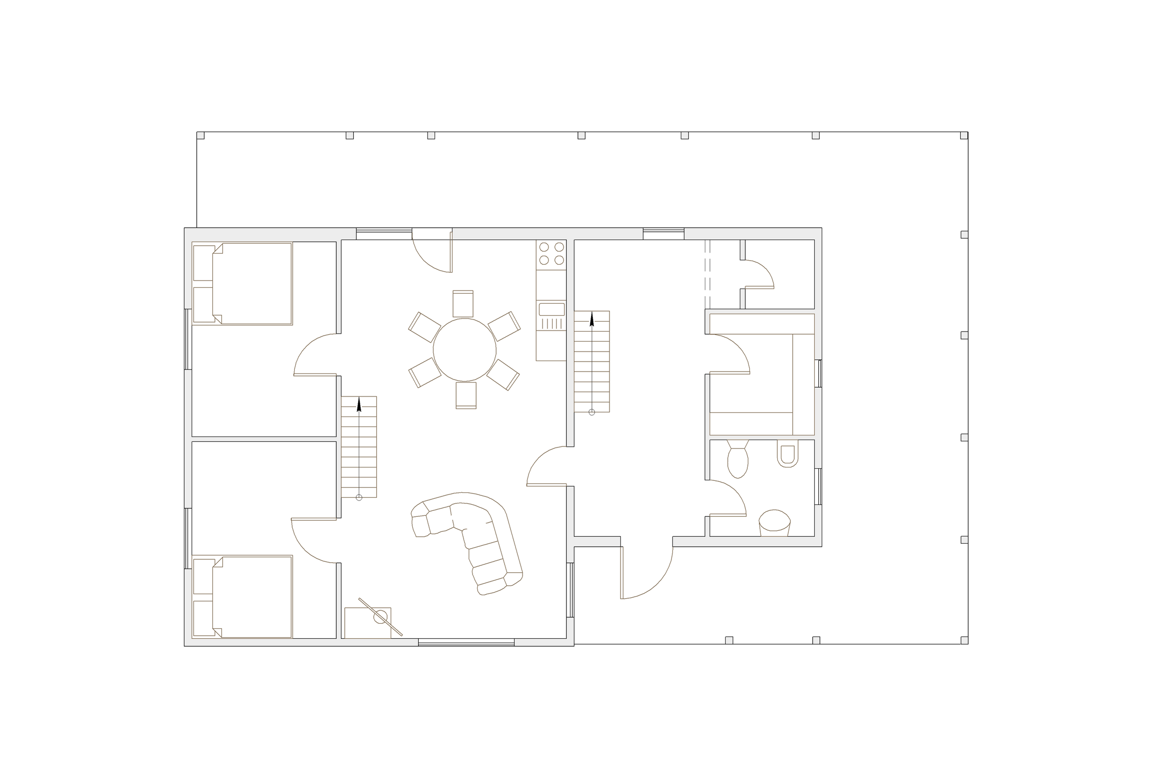
планировка ДО, 1 этаж
Изначальная планировка выглядела непродуманной:
- при входе в дом много маленьких помещений (санузел, сауна, душевая)
- зона с диваном неудобна для использования
- в спальнях кровати в углах
Прекрасно, что в реальности в зоне для телевизора был подготовлен фундамент под печь. Чем мы конечно же воспользовались.
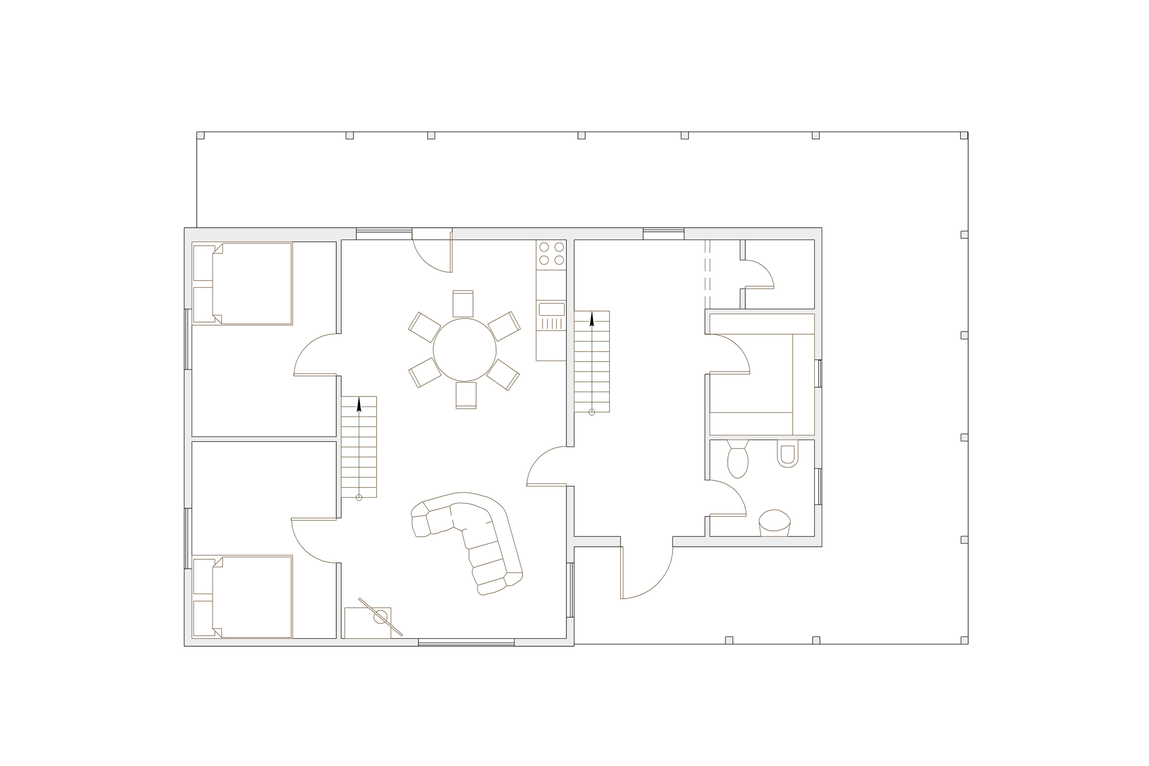
планировка ПОСЛЕ, 1 этаж
Что было решено сделать:
- при входе разместить санузел с небольшой нишей для гардеробного шкафа.
- создать большое открытое пространство, объединяющее столовую и кухню.
- напротив обеденного стола прорезать широкий проход на веранду.
- перенести входы в спальни, чтобы удобнее зонировать гостиную.
- установить печь-камин на существующий фундамент, а рядом уютно разместить лежанку для питомцев.
- присоединить часть веранды для создания проходной кладовой и котельной.
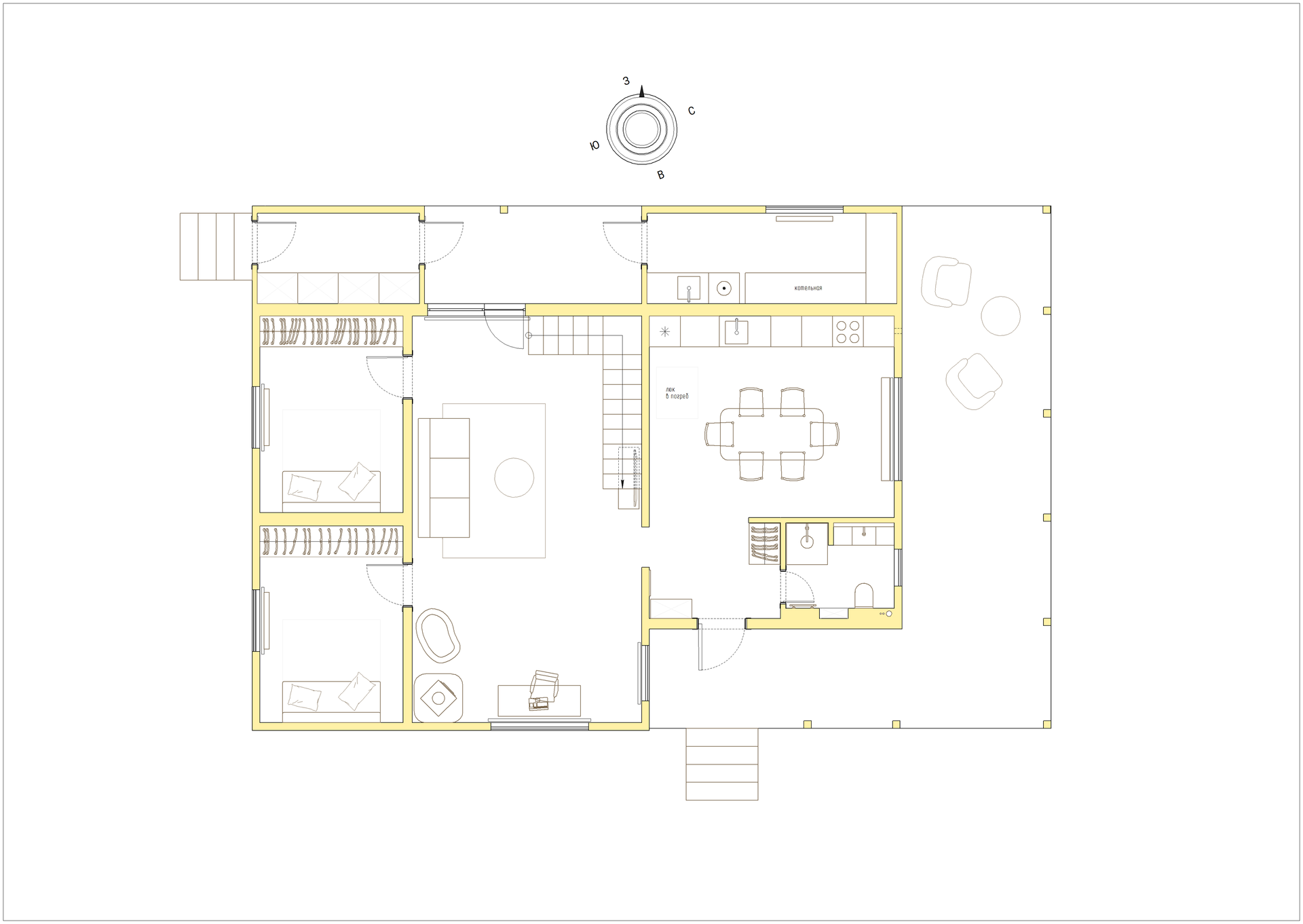
Вид из окна столовой
Интересной деталью является вид из окна в столовой: с северо-восточной стороны дома открывается потрясающий вид на поле с лесом. Именно поэтому было принято решение сделать панорамные перекатные перегородки с выходом на веранду.

Что не так с лестницей?
Отдельного внимания заслуживает проектирование удобной лестницы.
Изначально в проекте предполагалось создать две одинаковые лестницы (рисунок 1) в разных частях дома. Если взглянуть на такую лестницу сбоку (рисунок 2), то можно заметить, насколько она крутая. Крутые лестницы обычно устанавливаются для экономии пространства или в нечасто используемых зонах, таких как чердак. Однако в доме с полноценным вторым этажом лучше устанавливать комфортную лестницу, так как ею будут пользоваться регулярно.
В новой версии лестница стала угловой (рисунок 3), за счет чего удалось удобно разместить её в гостиной с минимальными потерями пространства. Кроме того, она стала длиннее, что позволило уменьшить высоту подъема ступеней. Если «разогнуть» такую лестницу и посмотреть на неё сбоку (рисунок 4, так называемая развертка лестницы), мы увидим, насколько удобнее стали глубина и высота ступеней.
рисунок 1
изначальная лестница
рисунок 2
изначальная лестница, вид сбоку
рисунок 3
новая угловая лестница
рисунок 4
новая угловая лестница, развертка, вид сбоку























