Город и год: Санкт-Петербург, 2023 г
Площадь: 40 кв. м. 
Статус: В процессе реализации 
Бюджет на ремонт: 4 млн р
Оказанная услуга: Концептуальный дизайн-проект: полный дизайн проект, полное сопровождение ремонта
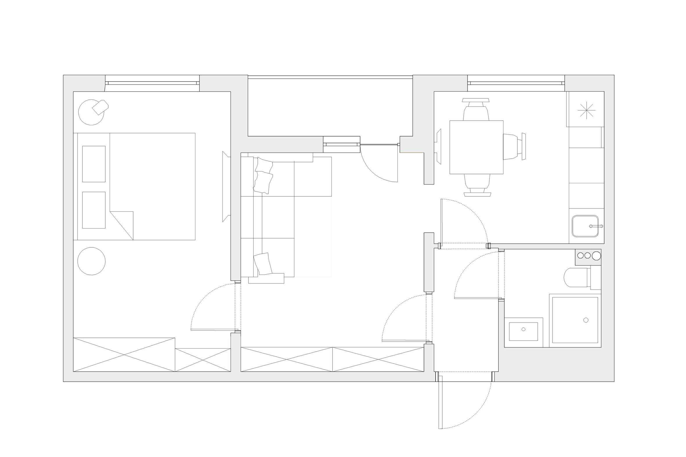
планировка ДО
планировка ПОСЛЕ
Комментарии к перепланировке
В изначальной планировке от застройщика на изображении не учитывались батареи, то есть уже на начальном этапе мебель расставлена так, как вживую она не встанет. Но основными проблемами планировки от застройщика были:
- отсутствие места для зоны хранения в прихожей
 - много дверей в целом и неудобное открывание в некоторых случаях
 - два прохода в гостиную — это уменьшает полезную площадь
 - невозможность установить стандартные 60 см шкафы в гостиную и спальню из-за широких дверей
 - отсутствие места для хранения в ванной комнате
 
При этом, все стены отлиты из железобетона, т. е. сносить их нельзя. Нужно было придумать решение, решающее все проблемы БЕЗ сноса стен. И все эти задачи мы успешно решили:
- один из проходов превратили в гардеробный шкаф
 - сократили общее количество дверей с 4 до 2х, сделали открывание удобнее, а незаметную перекатную перегородку спроектировали из стекла, что сохранить ощущение открытого пространства и впустить больше света
 - оставили один проход в гостиную
 - сократили 2 дверных проёма лишь на 10 см, что позволило установить комфортные шкафы глубиной 60 см
 - спроектировали хранение в ванной комнате
 - спроектировали максимально большое количество скрытого хранения во всей квартире
 
Комментарии к художественной составляющей интерьера
Квартира получилась «архитектурной» из-за планировки и систем хранения: шкаф в гостиной образует собой «стену»; а проход в стене в прихожей— превратился в дверцы шкафа; стеклянная дверь, которая по факту есть, но невидима благодаря стеклу — всё это про игру архитектуры и интерьера.
Также хотелось найти баланс между функцией и уютом, между строгими конструкциями и мягкостью. 
Паркет ёлочкой, накладные светильники СПЛ-55 (в прихожей), рифлёное стекло (в душевой), мини-автомобиль Победа — отсылают нас к советским архитектуре и дизайну. И в этом нет какой-то ностальгии, это скорее как переработанное и понятое прошлое, которое у всех нас было, и из которого можно забрать с собой всё, что нравится.
Детали проекта
— кровать с прикроватными тумбами имеют такую ширину, чтобы можно было переставить их к окну, если наскучит стандартная расстановка:
Стандартная расстановка:
Дополнительный вариант:


Потяни ползунок влево 🠔
и обрати внимание на то, как зеркальный шкаф зрительно увеличивает пространство.
к слову, каждый вариант шкафа хорош по-своему, какой больше понравился тебе?



— зеркало-арка имеет скругление углов, чтобы визуально смягчить пространство;
— гардеробные шкафы с зеркальными дверьми зрительно увеличивают пространство;
— в шкаф у окна смонтированы кондиционер и бризер с фильтрами для подачи чистого воздуха в помещение*.
*для качественной и долгосрочной работы оборудования необходимо будет открывать дверцы шкафа.

Окна этой квартиры выходят на западную сторону, а это значит, что квартиру будет заливать тёплый закатный свет каждый день в течение всего года. Ну, в зависимости от погоды, конечно же. Этот красивый свет хотелось подчеркнуть, дать ему место, заполнить им пространство… Поэтому дверь между гостиной и кухней решено было сделать прозрачной, т. е. из стекла.
— и удобнее всего сделать эту дверь не распашной, а перекатной, чтобы закатывать её за шкаф и она не занимала много места;
— также стеклянная перегородка создает некоторую шумоизоляцию, при этом пропускает нас в глубину пространства, показывает «многослойность» квартиры;
— если нужно убрать прозрачность, то сверху в проёме есть рулонная шторка, которую можно опустить при необходимости;
— в шкаф встроена витрина для выставки автомобильных моделей, которые обожает собирать владелец квартиры;
— а вытянутое высокое отверстие, ведущее внутрь шкафа — это ход в личное уютное местечко домашнего питомца — кошки :).

— кухонный гарнитур имеет утилитарную и при этом красивую столешницу из нержавейки;
— встроена вся техника для удобства: система фильтрации для воды, посудомойка, мини-духовка; микроволновка, стиральная машина с сушкой;
— есть неглубокие удобные системы хранения для продуктов.

— в прихожей теперь есть удобный шкаф с жалюзийными дверцами слева;
— а также неглубокий шкаф-ключница с зеркалом в полный рост справа;
— на потолке винтажные светильники СПЛ-55, купленные с разобранных вагонов Петербургского метрополитена;
— скругленные углы прохода на кухню добавляют мягкости пространству и повторяют форму зеркала из спальни;
— а скругленный стол с удобными винтажными стульями, выглядывающие из кухни, приглашают выпить чаю :).























